Заезжай и живи! Дом со всей мебелью и техникой!
Этот дом идеален для семьи, ценящей комфорт, природу и качество. Прекрасно подходит как для постоянного проживания, так и выездного отдыха!
Местоположение: Поселок Петровский микрорайон "Петроград", расположенный вблизи чистого Второго озера, предлагает прекрасные возможности для отдыха на природе и ведения активного образа жизни.
Развитая инфраструктура:
Супермаркет "Монетка" в 300 м от дома
Супермаркеты "Магнит", "Пятерочка" и др. , школа, детский сад, медицинский пункт, аптека в 3-5 минутах езды в поселке Петровский
Бесплатный оборудованный пляж с белым песком и удобным заходом в воду, подходящий для семейного отдыха и рыбалки.
Отличная транспортная доступность: 30 минут езды на автомобиле до центра города Челябинска, также есть остановка общественного транспорта с различными маршрутами автобусов и маршрутного такси.
Парк с пешеходными дорожками, спортивной и игровой площадками.
Общая информация:
Часть дома площадью 177,5 кв.м в двухэтажном дуплексе
Фундамент - свайно-ростверковый, монолитная плита.
Кровля - металлочерепица.
Стены - пеноблок, внешняя отделка - фасадная декоративная штукатурка, цоколь - керамическая плитка.
Качественная внутренняя отделка: все стены -декоративная штукатурка, в санузлах - керамогранит, пол - паркетная доска, керамогранит, ламинат, на лестнице - пробковое покрытие, натяжные потолки.
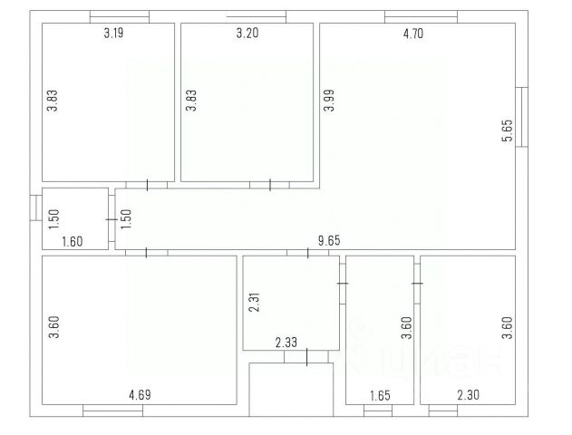
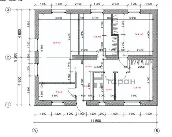
Планировка
1 этаж - просторная гостиная с уютным камином, кухня оснащенная всем необходимым оборудованием, в зоне прихожей большая встроенная гардеробная, гостевой санузел.
2 этаж - спальня 29.1 кв м с личным тренажерным залом, спальня 13,4 кв м с выходом на утепленную лоджию, большой санузел с душевой кабиной.
Здесь же на этаже расположена СПА-зона с электрической сауной, комнатой отдыха и отдельной душевой.
Застекленный тамбур защищает от холода и осадков вход в дом, также здесь удобно расположен вход в гаражи котельную.
Отапливаемый гараж 21,1 кв.м
Оборудованная котельная
Современное инженерное оборудование:
Централизованное газоснабжение
Водоснабжение из собственной скважины 44 м, также есть подключение к централизованной системе
Канализация автономная, выгребная яма с переливом из двух колодцев по 3 куб м каждый
Отопление - газовое автономное (двухконтурный котел (отопление и ГВС), теплый пол по всему 1 этажу и в сауне. Везде установлены радиаторы.
Земельный участок
Благоустроенный земельный участок 4 сотки с зоной отдыха, беседкой, мангалом, газонами, цветниками. Высажены различные декоративные и плодово-ягодные культуры. Оборудована система автополива по всему участку.
Просторная парковка во дворе легко вместит до трёх-четырех автомобилей, обеспечивая удобство для вас и ваших гостей.
Безопасность и комфорт:
- Интернет и кабельное ТВ уже подключены, чтобы обеспечить вам бесперебойный доступ к информационным ресурсам и развлечениям.
- Надежная охрана с видеонаблюдением гарантирует безопасность вашего дома и спокойствие вашей семьи.
- Минимум расходов: платёжные обязательства ограничиваются лишь расходами на газ, электроэнергию и вывоз мусора, что существенно экономит бюджет.
Не упустите шанс стать владельцем собственного уголка уединения и спокойствия всего в нескольких минутах езды от центра города! Возьмите с собой только личные вещи!
Один взрослый собственник, долгов и обременений нет! Срочная продажа в связи с переездом в другой регион.
Звоните прямо сейчас, чтобы договориться о просмотре и узнать больше деталей!
Если Вам необходимо сначала продать свою квартиру/дом/дачу - предлагаю профессиональную помощь в продаже и/или юридическое сопровождение.
Предоставлю квалифицированную помощь в одобрении ипотеки, использовании средств материнского капитала и всех видов сертификатов.
Арт. 120948082