село Кaйгoродово, ул. Луговаяд.13
Дом в 15 минутax езды от Чeлябинскa
Peкa Миасc и лес в шагoвoй доcтупнoсти
Что входит в стоимость:
дом 120 м.кв., участок 9,8 соток, газ протянут вдоль участка,все технические коммуникации заведены в дом, предчистовая отделка (штукатурка стен, разводка электричества),увеличенная кухня-гостиная с дополнительным окном, котельная в полной комплектации, теплый пол по всему дому, скважина и септик.
ИНФРАСТРУКТУРА:
- "Пятёрочка", Аптека, Красное Белое, ОZОN, Wildbеrriеs, детский клуб с секциями и кружками,ресторан "У Гоги",библиотека,
остановка общественного транспорта (маршрут 492, 248 - до остановки "ТРК Космос" ул. Чичерина)
- школьный автобус до школ в п. Трубный и п. Кременкуль
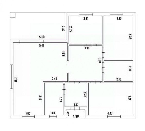
ПЛАНИРОВКА:
• прихожая с большой нишей для установки гардеробной;
• котельная увеличенной площади под тех.помещение (сделана под установку газового оборудования с учётом всех норм);
• просторная кухня-гостиная;
• 3 спальни;
• Большой санузел большой, можно сделать 2 гостевой
НАШЕ ПРЕДЛОЖЕНИЕ:
Мы можем обменять дом на квартиру или другой объект недвижимости. А также возможно купить этот дом по семейной ипотеке, через ИП. Дом подходит под сельскую ипотеку, если нужна помощь в одобрении ипотеки,обращайтесь, обязательно поможем, ВСЕ БЕСПЛАТНО!!!
родам дом/Обменяю дом/дом в п. Кайгородово/дом в предчистовой отделки/Загородный дом/ПРОДАМ ИЛИ ОБМЕНЯЮ ДОМ в п. Кайгородово!!!Погрузитесь в атмосферу тихого загородного жизни, не покидая при этом удобств городской жизни! Этот замечательный дом, расположенный в живописном Кайгородово, станет идеальным местом для вашей семьи. Участок в 9 соток окружен лесом и близлежащей рекой, что позволяет наслаждаться прекрасными пейзажами и свежим воздухом, а также предоставляет возможности для пеших прогулок и активного отдыха на природе. Дом находится в предчистовой отделке, что дает вам фантастическую возможность создать уникальное пространство по своему вкусу. Просторные комнаты позволяют задуматься о стильном дизайне и функциональной планировке, благодаря хорошей освещенности и рациональному использованию пространства. Можно реализовать идеи по поводу интерьера и отделки стен по индивидуальному проекту. Кайгородово, это удивительное место идеально подходит для семей с детьми, благодаря спокойной атмосфере и дружелюбным соседям. В окрестностях имеются все необходимые удобства, включая магазины,ресторан,шиномонтаж и т.д., Приятные соседние леса и река идеальные места для рыбалки, пикников и семейных прогулок. Кроме того, данный объект недвижимости имеет стратегически удобное месторасположение, что позволяет быстро добраться до города. Обмен на квартиру или другой объект недвижимости также рассматривается, что делает это предложение ещё более интересным. Не упустите возможность стать владельцем этого очаровательного дома в Кайгородово и получить все удовольствие от комфортной жизни на природе! Свяжитесь с нами для более подробной информации или для организации просмотра. Ваш идеальный дом ждет вас! Все вопросу по телефону! Возможная продажа от И.П