











108 333 ₽/м²
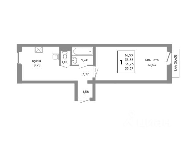
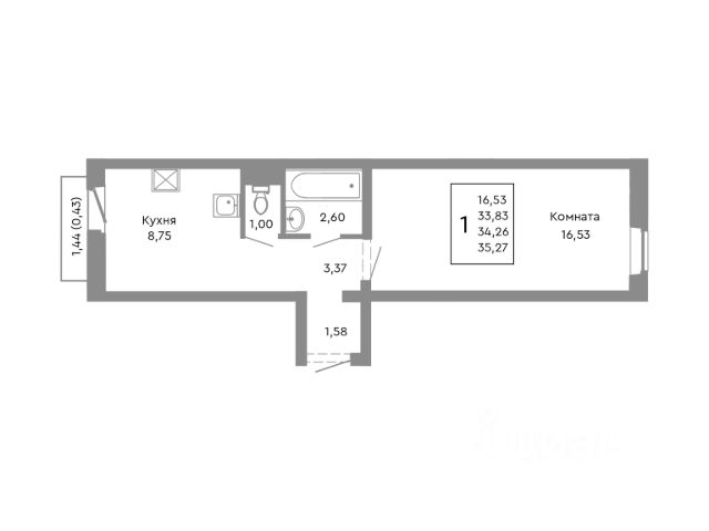
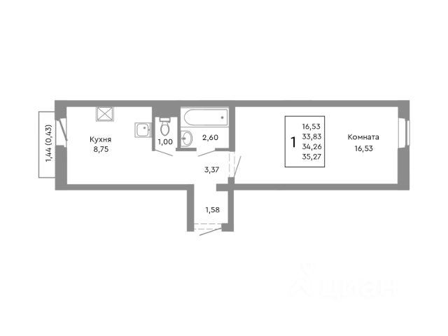
Продается семейная квартира, студия + спальня. Готов к заезду: Чистовой ремонт от застройщика. Завезли вещи — и начали жить. Светлый и тёплый: Солнце днём, уют вечером. С выгодой для вас: Проведу вас через ипотеку к самым низким ставкам. Семейная ипотека? Да, легко! Всё рядом: ЖК новой формации. Спроектирован так, чтобы вам никуда не пришлось ехать за мелочами. (Есть возможность договорится и большой скидке для вас!) Арт. 125260858










































































































































| 🔷 Средняя цена продажи: | 4,4 млн руб.; |
| 🔷 Средняя рыночная цена за м2: | 133 тыс. руб./м²; |
| 🔷 Минимальная стоимость жилья: | 3,4 млн руб.; |
| 🔷 Самый дорогой объект: | 5,5 млн руб.. |
Скачать, актуальные на 2023 год, шаблоны типовых документов:
Если решили воспользоваться услугами риелтора, то вам могут также пригодиться:
Используя типовой шаблон документа, помните, что он не может отражать всех нюансов и конкретных особенностей ваших договоренностей с контрагентом.