137 000 ₽/м²
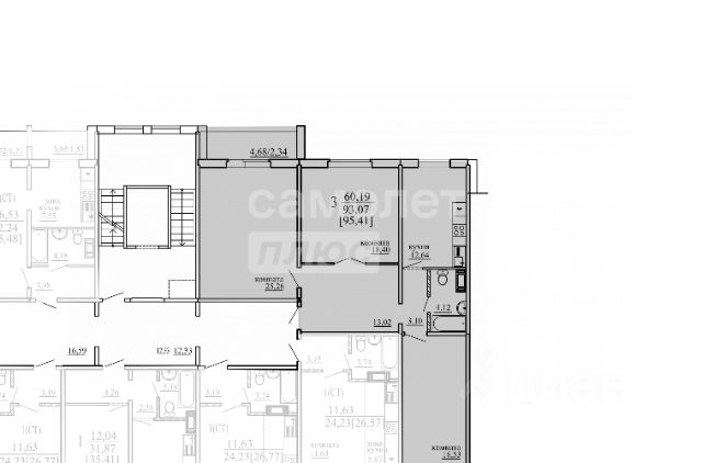
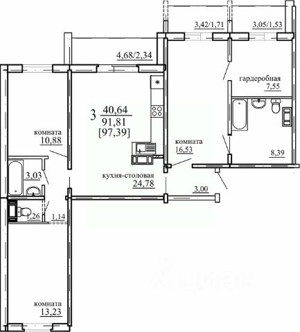
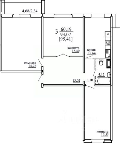
Арт. 123959084 Риелторов просьба не звонить. Квартира подходит под семейную ипотеку. Сдача дома апрель 2027. Квартал "Хорошее решение" в микрорайоне Парковый с качественной отделкой, современной архитектурой и безопасным благоустройством. Что включено в отделку: - Антивандальные обои (ASPEKT); - Многослойный линолеум JUTEX; - Окна в пол с двухкамерными стеклопакетами 40 мм от ПФК "Базис"; - Витражное остекление лоджий со стеклопакетом из триплекса ПФК "Базис"; - Стальные радиаторы Prado Classic V (вертикальные); - Межкомнатные царговые двери от ПФЦ "Далекс"; - Металлическая входная дверь от производителя "Селена"; Парадные: Дизайнерские холлы светлые пространства с пастельной палитрой, светопрозрачными конструкциями и высокими потолками 3,2 м. Фасад: Утеплённые и оштукатуренные фасады по технологии CERESIT эстетика, защита от осадков и скрытые панельные швы. Инфраструктура: Школы (гимназия 93, ЧОМЛИ, лицей 35, ОЦ 2), детские сады (47, 48, 45, 19 и частные детские сады), пункты выдачи заказов, аптеки, кафе, ТК "Фиеста" — в шаговой доступности. Для подробной консультации, звоните. С радостью ответим на все вопросы.




















































































