144 000 ₽/м²
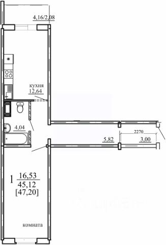
Продаётся 1-комнатная квартира в строящемся доме (Дом 11), срок сдачи: I-кв. 2027, общей площадью 36.18 кв.м., на 2 этаже. Новый жилой комплекс "Хорошее решение" от Специализированного застройщика "Сириус" расположен в Курчатовском районе Новосибирска на ул. Генерала Мартынова.
































































