Продаётся уютная квартира в ЖК "Ньютон"!
Описание квартиры:
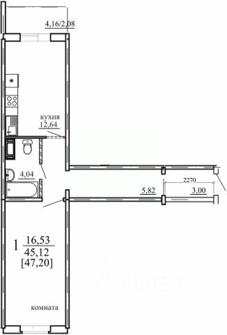
Площадь — 52,5 м². Удобная функциональная планировка включает просторную кухню-столовую площадью 16 м², две спальни (13,9 м² и 15,5 м² соответственно), комфортный холл размером 3,5 м², практичный санузел 4,4 м² и удобную панорамную лоджию площадью 3,6 м² с проведённым электричеством.
Состояние ремонта:
Ремонт выполнен застройщиком в пред. чистой отделке с гарантией качества на пять лет. Полностью подготовлены поверхности стен и пола для финишной отделки. Ремонт начат с применением высококачественных материалов (для себя).
ГОТОВЫЙ САНУЗЕЛ: облицовка стен керамической плиткой, качественная отделка пола водостойким кварц-винилом, удобная разводка сантехнических коммуникаций, большая ванна, стойка с тропическим душем, инсталляция, фоновое освещение в нише с полками, установлены современные аксессуары и дополнительное освещение.
СПАЛЬНЯ: Панорамные окна в пол с выходом на лоджию, эстетичная декоративная кирпичная кладка на стене, расширен электромонтаж, оригинальная чёрная батарея-трубка (радиатор).
КОМПЛЕКТАЦИЯ: купленные материалы для завершения ремонта: кварц-виниловая плитка на пол (светлое дерево, Германия), керамо-плитка на кухонный фартук, строительные клеи, смеси, грунтовки, валики, кисти и пр.
ЭЛЕКТРОРАЗВОДКА: Электрика (медь) разведена по всей квартире: включая удобные розетки, качественные выключатели, выводы под освещение, кондиционер, водонагреватель.
САНТЕХНИКА: профессиональные коммуникации в полу (скрытая разводка по полу) с использованием современных материалов UPONOR.
Остается техника:
Новый инверторный холодильник Beko NoFrost, новая современная инверторная стиральная машина LG, барабан с большой загрузкой — всё остаётся новым владельцам!
— Причина продажи — переезд в другой регион страны.
В ДОМЕ:
• Уютная Лобби-зона
• Гостевой санузел
• Колясочная
• Велосипедная
• Вело и лапо мойка
• Два бесшумных лифта ОТIS: пассажирский и грузовой
• Система автоматического пожаротушения
Преимущества жизни в ЖК "Ньютон":
— Охраняемая закрытая территория с видеонаблюдением и круглосуточным патрулированием пешими сотрудниками охраны.
— Безопасность обеспечена системой мониторинга (круглосуточно) и пожарной сигнализации, возможностью просмотра камер наблюдения онлайн через мобильное приложение.
— Консьерж-сервис и дополнительные удобства в подъездах (колясочные, комната для гостей).
— Просторный зелёный сквер (2 гектара) с прогулочными зонами, зоной отдыха, детской площадкой, спортивной территорией и специально оборудованной площадкой для занятий спортом и территорией для скейтеров и роллеров.
— Площадка для тренировок собак.
— Для автомобилистов просторный паркинг с удобствами внутри комплекса.
Инфраструктура района:
Жилой комплекс "Ньютон" расположен в самом сердце развивающегося района города с удобной доступностью всех необходимых объектов инфраструктуры: Образовательный центр "Ньютон" и новая строящаяся школа, четыре дет
Дополн