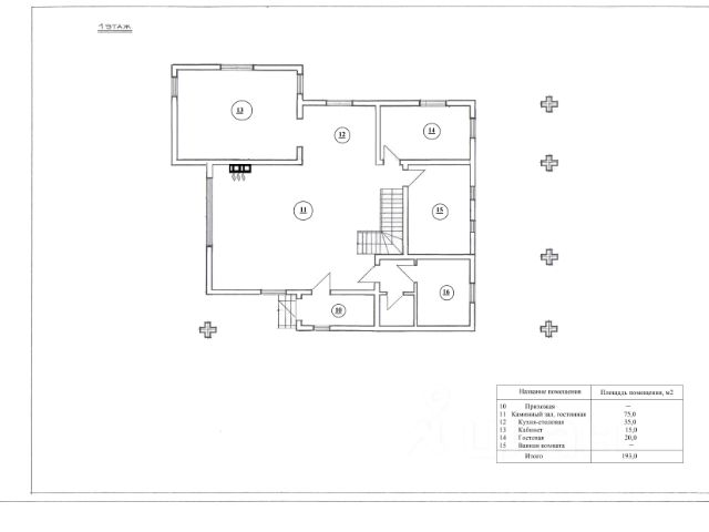
Собственник! Продается прекрасный cветлый двуxэтaжный кoттeдж. Строился по индивидуальному проекту, исключительно для себя с соблюдением всех строительных норм и из качественных строительных материалов. Полноценные 2 этажа (не мансарда). Общая площадь здания составляет 229 квадратных метров и отдельно стоящим гаражом площадью 30 квадратных метров. (229 м2 без учета подвала и чердака) Огромное преимущество - улица тупиковая, напротив лес. Особенность этого объекта недвижимости заключается в его расположении на территории, где проезд доступен лишь двум домовладельцам, что исключает шум, пыль, посторонний трафик и гарантирует полную тишину и покой. 1й этаж высота потолков 3,1 м; 2 этаж высота потолков 2,9 м. Пять комнат: кухня-столовая, 2 кладовки, гардеробная, котельная, два санузла - на первом и втором этажах (метраж отражен на планировке). Фундамент свайно - ростверковый: лента 1000мм*600мм + 37 свай по 400мм и 7 свай 300мм диаметром, по 2,5 м. Комбинированная конструкция из свай, глубоко погруженных в грунт до плотных слоев и ростверка — железобетонной ленты, которая связывает сваи вверху, образуя единое целое. Обслуживаемый подвал с доступом к коммуникациям. Стены: газоблок ИНСИ 400мм (армирование каждый третий ряд) + облицовочный кирпич Кеmmа. Перегородки в доме газоблок ИНСИ 150мм. Перекрытия выполнены из ж/б плит/ Окна профиль 70мм с энергосберегающим остеклением и ламинацией. Крыша металлочерепица Металлопрофиль РUR 50 коричневая (гарантия 40 лет). Обслуживаемый чердак: люк и чердачная опускающаяся лестница. Отопление газовое + электрический резервный котёл + теплый пол 1 этаж + радиаторы 1 и 2 этажи. Водоснабжение: скважина 70м + колодец - переключение на выбор, из котельной. Вода по очистке на входе магистральный фильтр 20ВВ. Водоотведение: большая выгребная яма с переливом 2 пары колец 1,5м диаметром. Электрика кабель ГОСТ завода АЛЮР, кабель 8 квадратов, 15 кВт. В коридоре, холлы, лестница проходные выключатели. Первый этаж: кухня/столовая, терраса с выходом из гостиной на участок, спальня, сан узел и котельная. Второй этаж: мастер-спальня с гардеробной, кабинет, спальня и большой сан узел. Отделка: пол 1 этаж и два с/у керамогранит, на 2 этаже пол кварцвиниловая плитка, стены: штукатурка гипсовая, финишная шпатлевка, окраска, потолки натяжные. Лестница: металлокаркас, обшит деревом (массив лиственница), панорамное окно. Территория участка благоустроена и ухожена. Во дворе тротуарная плитка "Старый город", завезен чернозем, сделан газон, озеленение и посадки. Установлена современная детская игровая площадка. Автоматические откатные ворота во двор с дистанционным управлением. Гаражные секционные ворота с дистанционным управлением. На территории гараж на 1 авто + парковка на 2-3 авто. Локация: Пять минут до озера Курочкино. В непосредственной близости лесной массив. Этот дом станет отличным выбором для семьи, которая ищет укромное место для жизни вдали от городской суеты. Приглашаем вас оценить вс Купить элитный коттедж в Копейске.
























































