Первичная продажа



дом сдан
8 240 000 ₽
127 950 ₽/м²
Жилой комплекс "Притяжение" - это инновационный для Челябинска и области проект. Он вбирает в себя как плюсы жизни за городом, так и современные дизайнерские и технологические решения.
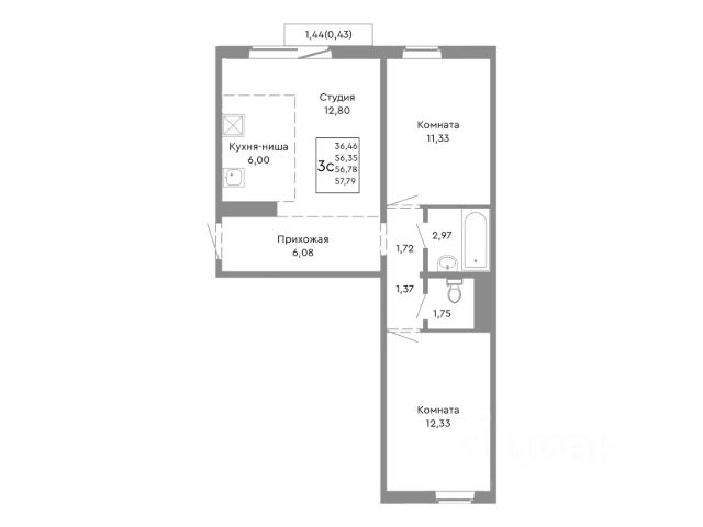
Продается студия + 3 спальни площадью 64,40 кв.м.
Жилой комплекс расположен в экологичном районе, на берегу Шершневского водохранилища в 20 минутах от центра города. При этом поблизости есть вся нужная для комфортной жизни инфраструктура - школа, детский сады, поликлиника, магазины и т.д.
Квартиры сдаются с готовой чистовой отделкой, в стоимость уже входят межкомнатные двери, ламинат, натяжные потолки с закладной для люстры, светлые обои под покраску. В санузле — вся необходимая сантехника, а стены и пол полностью выложены плиткой.
Действует программа Квартиры с мебелью и техникой, которая позволяет включить их покупку в стоимость ипотеку.

















































































































