2 400 000 ₽
68 768 ₽/м²
Продается 1-комнатная квартира в Челябинске, ЧВВАКУШ, ул. Героя России Молодова, дом 22 — отличный вариант для первого жилья или приобретения для сдачи в аренду.
Возможна ипотека.
Квартира площадью 34,9 м² расположена на 1-м этаже 5-этажного панельного дома 1970 года постройки. Жилая площадь 18 м², кухня 6 м², потолки 2,3 м.
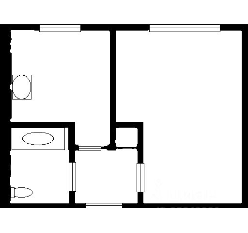
Планировка изолированная, санузел совмещенный, есть небольшая кладовка.
Квартира без ремонта — это дает возможность оформить пространство по своему вкусу и сэкономить на переплатах за чужой дизайн.
Окна выходят во двор, что обеспечивает тишину и приватность.
Балкона нет, лифта в доме нет.
Тип квартиры — стандартная, подходит для комфортного проживания одного человека или пары, а также для последующего ремонта и увеличения стоимости при перепродаже.
Район отличается хорошо развитой инфраструктурой и удобной доступностью городской среды. В пешей доступности находятся магазины Магнит, Монетка, в соседнем дворе школа 28, в 10 минутах ходьбы поликлиника 5, что делает повседневную жизнь комфортной. Удобные транспортные связи обеспечивают быстрый выезд в разные части города — рядом остановки общественного транспорта, что особенно важно для работы и учебы.
Зеленые зоны и внутридомовые дворы дают возможность для прогулок и отдыха рядом с домом.
Ключевые преимущества этой сделки:
- Цена 2 400 000 руб. — выгодное предложение для района и формата "однушка" с потенциалом роста стоимости после ремонта.
- Возможна ипотека — подберите удобную программу и оформите покупку с частичной оплатой.
- Первый этаж — удобство входа без необходимости использования лифта, удобно для пожилых и семей с детьми.
- Окна во двор — меньше уличного шума, безопасная зона для прогулок.
Звоните сейчас, чтобы договориться о просмотре и уточнить варианты ипотечного сопровождения — оперативно организуем показ и поможем с документами для быстрой сделки.
Арт. 135880826



















































































