Мы используем куки-файлы. Соглашение об использовании
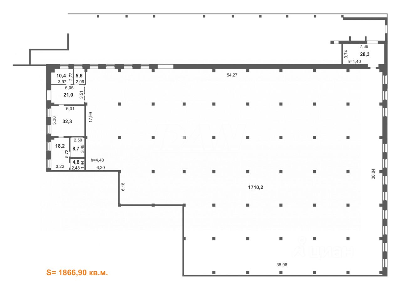
Площадь1 867 м²
Этаж1 из 1
Сетка колонн6x6
Выс. потолков4.4 м.
Отчёт о привлекательности объектаУзнайте, насколько помещение и район подходят для вашего бизнеса
Что входит в отчёт
  • Охват населения
  • Пешеходный трафик
  • Автомобильный трафик
  • Средний бюджет семьи по району
  • Арендные ставки рядом
  • Точки притяжения
  • Конкуренты в радиусе 1 км
  • Рекомендации по выбору места для бизнеса
Сдается в аренду отличное теплое производственно-складское помещение с дебаркадером и помещением для персонала, офисом общей площадью 1867 кв. м. Площадь объекта позволяет разместить склад готовой продукции, различные виды производства, распределительный центр. Транспортная развязка в расположении объекта, обеспечивает всем выдам автомобильного транспорта доступ: + 1 мин. до ул. Копейское шоссе (прямой въезд/выезд в г.Копейск + 15 мин. автодорога Меридиан (прямой въезд/выезд в сторону Республики Казахстан, г.Троицк, г.Уфа, г.Екатеринбург, г.Курган) + 20 мин. Обход города Челябинска (прямой въезд/выезд на федеральную трассу М5) + 20 мин. до Центра Челябинска Характеристики объекта: Электрическая мощность объекта 220 В + 380 В мощностью 60 кВт Склад с АБК Общая площадь 1867 кв. м: 1 752,7 кв.м складское 82,5 кв.м помещения для персонала 31,7 кв.м офисное Ворота распашные 3,0 *3,0 м - 1 шт. Отопление - централизованное Температурный режим +20С Беспылевые полы Высота потолка: от 4,4 м. 3 сан. узела. Парковка на 10 машиномест Доступ 24/7 Охранная сигнализация Подъездные пути: асфальтированная дорога Коммунальные расходы оплачиваются отдельно. По всем интересующим вопросам - звоните Арт. 18749832
lock

Войдите или зарегистрируйтесь
для просмотра информации

Просматривайте условия сделки и всю информацию об объекте
Сохраняйте фильтры в поиске и не вводите заново
Доступ к избранному с любого устройства
Неограниченное добавление в избранное
Позвоните автору
Вам ответят на все вопросы
Остались вопросы по объявлению?
Позвоните владельцу объявления и уточните необходимую информацию.
  • Инфраструктура
  • Похожие рядом
Помощь надёжных риелторов
Риелтор партнёр Циан поможет купить или продать любую недвижимость
746 800 ₽/мес.

Прямая аренда (от года)

9 899 $/мес.
8 461 /мес.
Цена за метр
4 800 ₽ в год
Налог
УСН
Комиссия
нет
Коммунальные платежи
не включены
Эксплуатационные расходы
не включены
Агентство недвижимости
Суперагент
На Циан
6 лет
Объектов в работе
263