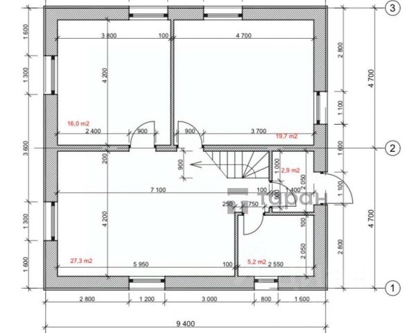
Участок с подрядом Характеристики: - 66м2 полезной площади - надежный фундамент с большим запасом прочности и теплыми полами по всему периметру - мягкая отмостка - газоблок ИНСИ 300мм - армопояс - окна с двухкамерным стеклопакетом и качественной фурнитурой - входная дверь с терморазрывом - перекрытие утеплено базальтовой крошкой 200мм - кровля профилированный лист толщиной 0,4мм ГОСТ - установлены водоотливы - фасад дома закрыт теплопанелями толщиной 50мм с декоративным покрытием - в доме разведены все коммуникации (вода, слив, электричество) - установлен электро котел 6 кВт для теплого пола и вся система отопления - стены оштукатурены Данный проект дома можно увидеть в живую на экскурсии с нашим Экспертом! У нас всегда есть на этапе строительства дома такой планировки. Дом получается теплым, светлым и максимально функциональным. Рассчитан на семью из 2-3 человек. А площадь пятна застройки позволяет разместить дом даже на участке от 5 соток! За дополнительную оплату можем прокачать данный дом: - просторной террасой - ламинацией окон под цвет кровли - заземлением дома Пишите в сообщениях или звоните по телефону 8 (904) 8000-799 для записи на просмотр как готовых, так и строящихся домов от компании Житеево *цена товара указана за "Базовую" комплектацию. Стоимость полной комплектации, указанной в описании, вы можете уточнить в отделе продаж















































































