С мебелью
8 300 000 ₽
123 881 ₽/м²
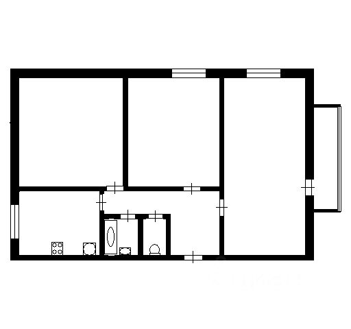
Продается уютная 2-комнатная квартира в тихом и зеленом районе Снежинска по адресу: улица Академика Забабахина, 52. Общая площадь квартиры составляет 67 квадратных метров, жилая площадь — 35.2 кв. м, а просторная кухня — 24.3 кв. м. Квартира расположена на 5 этаже 9-этажного панельного дома, построенного в 2005 году. Высота потолков — 2.6 метра.
В квартире сделан косметический ремонт, что позволяет вам сразу заехать и жить. Планировка включает две светлые комнаты и просторную кухню, где можно собираться всей семьей. Санузел раздельный, что очень удобно для утренних сборов. Также есть лоджия, где можно насладиться свежим воздухом.
Дом оборудован пассажирским лифтом и мусоропроводом, поэтому можно с легкостью справляться с бытовыми делами. На территории дома предусмотрена наземная парковка, всегда есть место для вашего автомобиля.
Рядом с домом находятся все необходимые объекты инфраструктуры: школы и детские сады, что удобно для семей с детьми, а также клиники и магазины для удобства повседневной жизни. До остановок общественного транспорта можно дойти за несколько минут, поэтому добраться до центра города или других районов не составит труда.
Квартира продается без обременений, возможна ипотека. Все документы готовы к сделке. Вас ждет прозрачная и безопасная покупка без дополнительных комиссий.
Приглашаем вас на просмотр! Это отличная возможность приобрести комфортное жилье в обжитом районе. Звоните, чтобы записаться на удобное для вас время. Продам вторичное жильё с ремонтом в Снежинске.
















































































