13 500 000 ₽
Новый двухэтажный дом в поселке "Нежный"
ВЫГОДНАЯ ИПОТЕКА 6% на новостройки!
*Семейная ипотека
*ИТ-ипотека
Прямая продажа от Застройщика — без комиссий и переплат!
Продадим вашу квартиру за 710 дней по МАКСИМАЛЬНОЙ цене!
Посчитаем стоимость ремонта и дадим контакты проверенных отделочных бригад.
О поселке и локации:
Удобная транспортная развязка по отношению к районам города и загородным базам отдыха.
Уличное освещение, асфальтовое покрытие дорог, построена детская и спортивная площадки, функционирует почтовое отделение, продуктовые магазины, пекарня, автосервис.
В проекте запланировано строительство детского сада и школы.
О объекте:
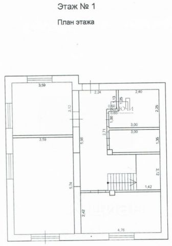
Общая площадь 240 кв.м.
Площадь участка 4,5 сотки;
4 спальных комнаты;
Кухня-гостиная с выходом на террасу;
Все коммуникации (газ, свет, вода, канализация) центральные - заведены в дом;
Предчистовая отделка: Котел с разводкой отопления по дому, разводка электрики, воды и канализации, стены оштукатурены, входная дверь с терморазрывом, сухая стяжка;
Крыша мягкая черепица Шинглас - графит, полноценный второй этаж.
Можно в ипотеку
Цена 13 500 000 ₽
Ставка 6 %
Платёж 35 600 ₽
Для сотрудников ПАО "ММК" действует компенсация 50% платежа по ипотеке
Если вы хотите узнать подробности по лоту или рассмотреть другие варианты недвижимости в данной локации позвоните нам или напишите в сообщения эксперту и получите подборку Лотов.
ЗВОНИТЕ - показ в удобное время!
Арт. 119644444










































































