


154 037 ₽/м²
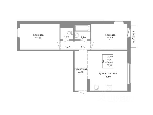
Квартал "Клевер" современный жилой комплекс на северо-западе Челябинска от надежного застройщика Группа компаний ИКАР. Проект располагается недалеко от Ледовой арены "Трактор", в границах улиц Братьев Кашириных, Салавата Юлаева и 250 лет Челябинска. Квартал состоит из четырех монолитных домов комфорт-класса высотой от 6 до 16 этажей. Основное преимущество ЖК "Клевер" - готовая инфраструктура района. Всё необходимое находится в шаговой доступности! Первые этажи домов занимают коммерческие помещения, которые предназначены для аптек, магазинов, кафе и ресторанов, создавая удобство для жителей комплекса. Более 15 продуманных планировочных решений - от функциональных студий до просторных пятикомнатных квартир. Особые планировки видовые квартиры, квартиры с мастер-спальней, квартиры с террасами, квартиры с отдельным входом, двухуровневые квартиры и др. Высота потолков от 2,85 до 3,3 метра Преимущества ЖК КЛЕВЕР: - благоустроенные дворы без машин; - детские игровые и спортивные площадки; - ландшафтное озеленение территории; - сквозные подъезды - выход во двор и на улицу; - прозрачные входные группы; - красивые и удобные холлы; - система видеонаблюдения; - кладовые; - помещения для детских колясок и велосипедов; - подземный и наземный паркинг; - собственная прогулочная аллея. Действуют различные виды оплаты: ипотека от крупнейших банков РФ, материнский капитал и семейная ипотека, военная ипотека, ипотека для ИТ-специалистов, жилищные сертификаты, программы рассрочки от застройщика и покупка в Трейд-ин. Квартал Клевер. Квартиры на счастье. 3-комнатной квартиры с евроремонтом в Челябинске.


























































































































