95 840 ₽/м²
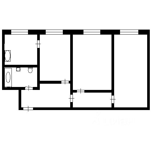
В ПРОДАЖЕ КОМФОРТАБЕЛЬНАЯ ТРЕХКОМНАТНАЯ КВАРТИРА С ЭРГОНОМИЧНОЙ ПЛАНИРОВКОЙ ПЛОЩАДЬЮ 62,5 КВ.М (без учета площади балкона) ПО ПРИВЛЕКАТЕЛЬНОЙ ЦЕНЕ в панельном доме серии брежневка в тихом районе с развитой инфраструктурой в квартале разграниченном ул. Красного Урала, пр-кт Комсомольский, ул Пионерская, пр. Победы - отличное предложение для семейной пары, семейной пары с детьми, для тех, кто хочет заехать и жить, экономя время на ремонт и обустройство Квартиры. О ДОМЕ: - Панельный Дом с повышенной шумо- и звукоизоляцией 1969 года постройки; - Дом обслуживает добросовестная УК Стэкк; - В Доме проживают добропорядочные соседи. ПРЕИМУЩЕСТВА КВАРТИРЫ: - 3 раздельные комнаты (17,5 кв.м., 17,2 кв.м. и 10,5 кв.м.), кухня правильной прямоугольной формы (площадью 6,0 кв.м); - Квартира наполнена естественным светом и теплом: окна выходят на северо-запад и юго-восток; - Квартира расположена вдали от высокого трафика и проезжей части, поэтому Дома Вы будете наслаждаться тишиной и спокойствием; - Квартира расположена на высоком первом этаже, имеется застекленный балкон. - В Квартире произведен частичный ремонт: заменена Дверь на новую качественную металлическую, стены - качественные флизелиновые обои, пол - ламинат (ковролин), частично установлены натяжные потолки; в сан.узле кафель в потолок, установлена свежая качественная сантехника; - Счетчики воды опломбированы; - Внутриквартирные трубы заменены на новые полипропиленовые. В подарок для Покупателя при покупке Квартиры остается вся мебель и техника. В шаговой доступности Детский сад 390, 350, 337, Гимназия 26, сквер по ул. Пионерская, 10, Центр детского творчества г. Челябинска, Мировые судьи, центр имплантации и эстетической стоматологии Юлия, супермаркеты Пятерочка и Монетка, продуктовые магазины, остановки общественного транспорта и многое другое. Удобная транспортная доступность обеспечивается выездом на пр. Победы и Комсомольский пр-кт. Квартира юридически чистая. Один взрослый совершеннолетний собственник. В собственности более 10 лет. Полная цена в ДКП. Квартира физически свободна. Квартира без ограничений и обременений! Быстрый выход на сделку! Свободная продажа! Звоните, организуем просмотр в удобное для Вас время по предварительной договоренности! Продам 3-комнатную квартиру в хрущёвке в Челябинской области.



























































































