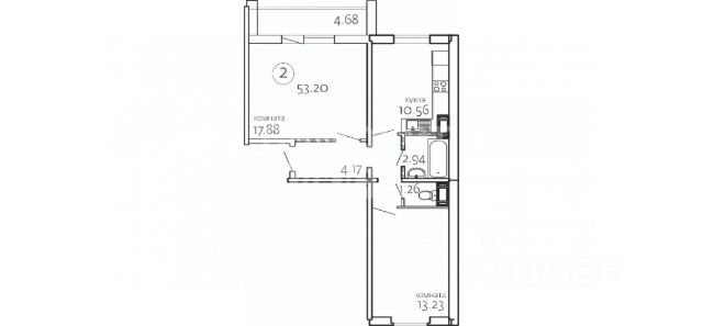
Продаётся 2-комнатная квартира в сданном доме (Комсомольский пр-кт, 147 (20стр (3 этап))), срок сдачи: IV-кв. 2025, общей площадью 68 кв.м., на 2 этаже. ЖК "Ньютон" - это 500 000 кв. метров жилья комфорт-класса. Комплекс охватывает территорию двух микрорайонов, в центре одного из них расположен сквер, проектом предусмотрено устройство пешеходной аллеи и спортивного кластера со скейт-парком.
Дома ЖК "Ньютон" - разноэтаэжные монолитно - кирпичные дома без внутренних несущих перегородок. Такие конструктивные особенности позволяют жителям изменять пространство по своему усмотрению, воплощать любые планировочные решения.
Дома оснащены современными инженерными системами, данные всех систем выведены в единый диспетчерский пункт, что позволяет контролировать функционирование каждого дома и в режиме онлайн реагировать на внештатные ситуации.
При строительстве используются инновационные для города технологии строительства. Например, выносное остекление, которое позволяет увеличить площадь балконов и лоджий, не уменьшая площадь квартир, а энергосберегающие окна и система вентиляции с принудительной вытяжкой и естественным притоком позволяют снизить затраты на коммунальные платежи и обеспечить комфортный микроклимат в каждой квартире.
Всего в ЖК "Ньютон" будет построено 160 тыс. кв м. жилья, 3 подземные парковки, которые вместят более 1000 автомобилей, предусмотрены наземные парковки из расчета не менее 570 автомобилей/1000 жителей (при существующей норме 450/1000).
ЖК "Ньютон" - это идеальный район для проживания семей:
- 12 детских площадок с различной тематикой, детские сады, общеобразовательные школы и организации дополнительного образования;
- каждый двор организован согласно концепции "парк во дворе", что включает в себя большие тематические игровые площадки, велосипедные дорожки и спортивные комплексы;
- закрытые дворы и более 1500 камер видеонаблюдения обеспечивают безопасность комплекса на высшем уровне.
- наземный и подземный паркинг;
- помещения специального назначения: кладовые, велосипедные, колясочные, вело-лапомойки, зона буккросинга в каждом подъезде;
- готовая торговая и сервисная инфраструктура и многое другое.
Всё это выделяет ЖК "Ньютон" на фоне другого жилья.
ЖК "Ньютон" - уникальный проект, расположенный в экологически благоприятном районе города Челябинска. До центра города всего 15 минут на автомобиле, остановка общественного транспорта и несколько главных транспортных артерий района находятся в 2-5 минутах от жилого комплекса.
В рамках развития социальной инфраструктуры СК "Легион" построены 2 детских сада и общеобразовательная школа, ведущие деятельность как единый учебный центр. Помимо реализованных проектов предусмотрено строительство еще двух детских садов и школы. На базе школы ведет работу "Школа искусств", также в жилом комплексе расположен филиал "Дворца Пионеров и Школьников им. Крупской Н.К", где дошкольники и школьники могут заниматься спортом, творчеством, научной деятельностью.
Создан Клуб Добрососедств