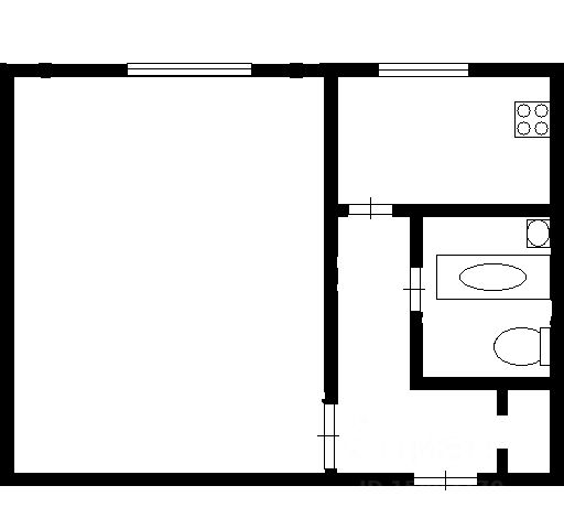
Продаётся 1-комнатная квартира в сданном доме (пр. Макеева, 85), срок сдачи: IV-кв. 2025, общей площадью 39.8 кв.м., на 5 этаже. Микрорайон "М" строится на въезде в город Миасс со стороны Екатеринбурга. Он станет частью самого современного, благоустроенного и экологически благополучного района города - Машгородка. Машгородок расположен в красивейшей долине, окружен лесистыми горами, в непосредственной близости от него находится уникальное озеро Тургояк, справедливо называемое "жемчужиной Южного Урала" за чистоту, глубину и целебные свойства воды. На его живописных берегах расположены многочисленные туристские базы, профилактории, оздоровительные центры, рассчитанные как на широкий круг клиентов, так и на VIP -отдыхающих. На оз. Тургояк также работают два яхт-клуба, проводятся соревнования, в том числе международного уровня, и есть возможность заниматься парусным спортом. Неподалеку от Миасса расположен горнолыжный центр "Солнечная долина", где созданы условия для семейного отдыха и занятий горными лыжами, скейтбордом и другими зимними видами спорта. Любители дальних туристских походов оценят еще одно преимущество расположения машгородка - близость национального парка "Таганай" с его древними горными хребтами, каменными реками и нетронутыми густыми лесами.
Микрорайон "М" спроектирован как "город в городе" и сориентирован на максимальную автономность и надежность всех систем жизнеобеспечения. Здесь предусмотрено все необходимое для полного удовлетворения потребностей современного человека в товарах, услугах и культурном досуге.
На территории поселка будут построены школа (на 300 мест) и детский сад (на 180 мест), магазины и банк, кафе, ресторан, спортивно-развлекательный комплекс (возможно со встроенным аквапарком), каток и теннисные корты, гостиница, библиотека, аптека, созданы условия для ведения семейного бизнеса, приближенного к дому и потребителям.
Комфортное проживание в нашем микрорайоне гарантировано новыми современными инженерными сетями:
- собственная централизованная система водоснабжения от артезианских скважин поставляет чистую воду по сниженному тарифу;
- основное и резервное энергоснабжение обеспечивают бесперебойное и независимое электропитание для жителей микрорайона;
- горячая вода и тепло для домов - продукт собственных современных котельных, что позволяет снизить расходы на отопление и горячее водоснабжение по сравнению с городскими центральными системами отопления.
- качественные управляющие услуги оказывает собственная Управляющая Компания "ИБК-Сервис", а бесперебойное функционирование сетей круглосуточно контролирует собственная диспетчерская служба. Все это позволит забыть о бытовых проблемах и больших счетах за коммунальные услуги.