
105 000 ₽/м²
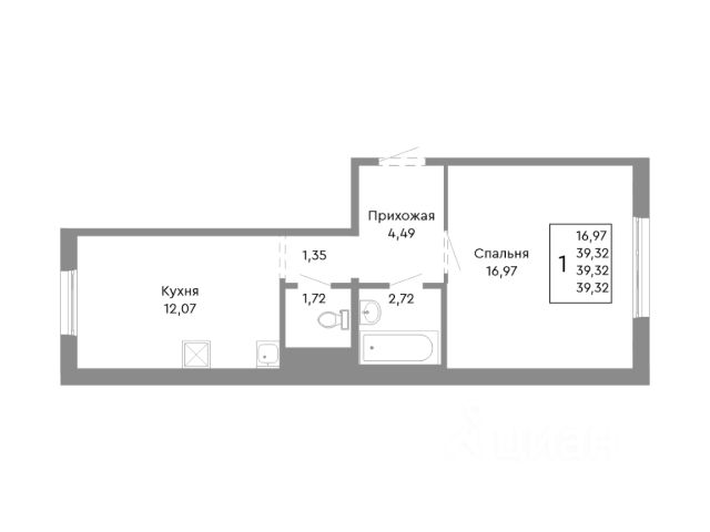
Продаётся 1-комнатная квартира в сданном доме (Дом 12стр), срок сдачи: IV-кв. 2025, общей площадью 49.02 кв.м., на 1 этаже. Комплекс находится поодаль от крупных транспортных магистралей, что гарантирует тишину и отсутствие пыли, но при этом-в непосредственной близости от необходимых объектов инфраструктуры. Жилой комплекс квартальной застройки по улице Кулибина можно заслуженно отнести к безопасным и комфортным для жизни кварталам. Внутриквартальный двор формирует единую огороженную территорию, создавая приятное ощущение безопасности. Двор хорошо просматривается с любой точки: можно смело отпускать ребёнка гулять или оставлять игрушки на детской площадке. Соседи знают друг друга в лицо, и появление постороннего становится заметным. Кроме того, проект предусматривает качественное трехуровневое освещение: в темное время суток двор равномерно подсвечен, что делает прогулку комфортной и безопасной. Новые стандарты проектирования призваны стать основой городской жизни, обеспечить максимальную защищенностьжителей как в доме, так и на улице. Продается 1-комнатная квартира на 1 этаже в Челябинске.














































































































