Мы используем куки-файлы. Соглашение об использовании

Продается 3-комн. квартира, 60 м²

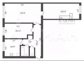
Общая площадь60 м²
Жилая площадь41 м²
Площадь кухни7 м²
Этаж5 из 5
В продаже светлая, чистенькая трехкомнатная квартира с видом на парк Притяжение. *Комнаты смежно- изолированные. (восток-запад) *Большой коридор. *Раздельный санузел. *3 кладовки. Без долгов и обременений. Удобная транспортная развязка. До парка Притяжение 5 минут пешком 2 взрослых собственника. Чистая продажа. Быстрый выход на сделку Арт. 134820978
Позвоните автору
Вам ответят на все вопросы

О квартире

Тип жилья

Вторичка

Общая площадь

60 м²

Жилая площадь

41 м²

Площадь кухни

7 м²

Санузел

1 раздельный

Балкон/лоджия

1 балкон

Вид из окон

На улицу и двор

Ремонт

Косметический

О доме

Год постройки

1972

Строительная серия

1-439

Тип дома

Блочный

Тип перекрытий

Железобетонные

Подъезды

6

Отопление

Центральное

Аварийность

Нет

Газоснабжение

Центральное

Спросите умного помощника
Получите экспертное мнение о жилье

Расположение

Ипотечный калькулятор
  • Базовая
  • Семейная
  • ИТ-ипотека
  • 20%
  • 30%
  • 40%
  • 50%
лет
  • 10 лет
  • 20 лет
  • 30 лет
Загружаем предложения от застройщика и банков
Зимой будет очень тепло
Дома такой же серии обычно очень хорошо сохраняют тепло
9
Помощь риелтора
Проверенный риелтор поможет купить или продать квартиру
4 300 000 ₽
Цена за метр
71 667 ₽/м²
Условия сделки
свободная продажа
Ипотека
возможна
Агентство недвижимости
На Циан
5 лет
Объектов в работе
436