Мы используем куки-файлы. Соглашение об использовании
С мебелью

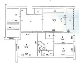
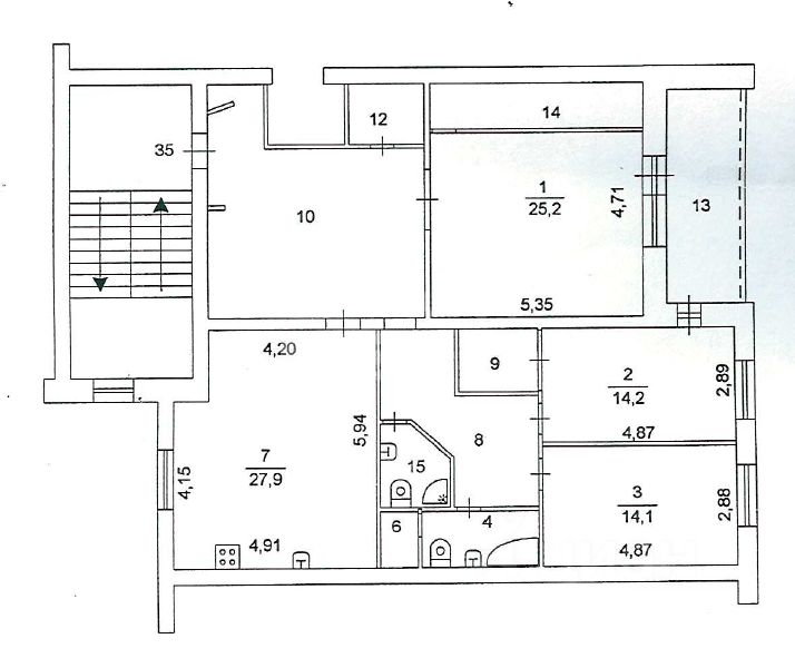
Продается 3-комн. квартира, 136 м²

Общая площадь136 м²
Жилая площадь65 м²
Площадь кухни28 м²
Этаж4 из 7
Год постройки1995
Эту квартиру можно приобрести в ипотеку по ставке от 11,99 % только через наше агентство. Квартира в одном из самых востребованных среди покупателей доме. Либкнехта 9. Дом кирпичный, 1995 года постройки. Квартира общ площадь 137 кв м. Удобная планировка.Большая кухня-столовая - 28м. Просторный холл - 30 м, можно совместить с функционалом гостиной. Три спальни, две из которых имеют свои гардеробные комнаты. Два раздельных санузла. Просторная лоджия. Состояние квартиры позволяет заехать и жить, а ремонт при желании можно делать поэтапно. Дом в центре города. Близость всей инфраструктуры, школы, садики, больница, поликлиника, спортивные школы, магазины, остановки общественного транспорта. Один собственник. Предварительный показ. Арт. 134687109
Позвоните автору
Вам ответят на все вопросы

О квартире

Тип жилья

Вторичка

Общая площадь

136 м²

Жилая площадь

65 м²

Площадь кухни

28 м²

Санузел

1 раздельный

Балкон/лоджия

1 лоджия

Вид из окон

На улицу и двор

Ремонт

Косметический

Продаётся с мебелью

Да

О доме

Год постройки

1995

Строительная серия

Индивидуальный проект

Тип дома

Кирпичный

Тип перекрытий

Железобетонные

Подъезды

3

Парковка

Наземная

Отопление

Центральное

Аварийность

Нет

Спросите умного помощника
Получите экспертное мнение о жилье

Расположение

Ипотечный калькулятор
  • Базовая
  • Семейная
  • ИТ-ипотека
  • 20%
  • 30%
  • 40%
  • 50%
лет
  • 10 лет
  • 20 лет
  • 30 лет
Загружаем предложения от застройщика и банков
Помощь риелтора
Проверенный риелтор поможет купить или продать квартиру
21 000 000 ₽
Цена за метр
154 412 ₽/м²
Условия сделки
свободная продажа
Ипотека
возможна
Агентство недвижимости
ID 106349263
Документы проверены