Мы используем куки-файлы. Соглашение об использовании
Только на Циан
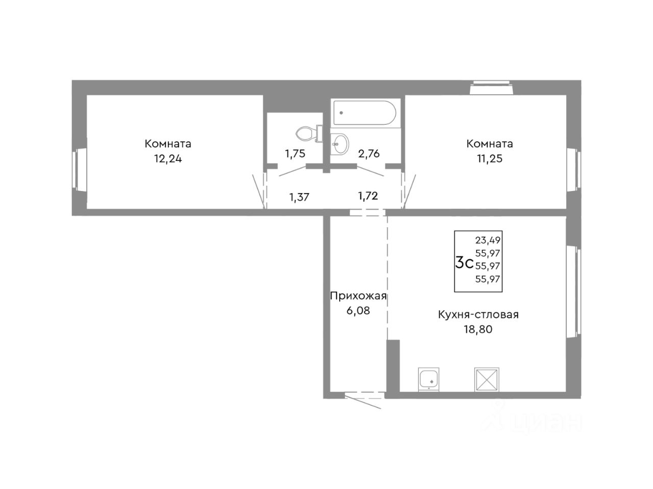
Общая площадь55,97 м²
Жилая площадь23,5 м²
Этаж2 из 10
Год сдачи2027
ДомНе сдан
ОтделкаЧистовая
Продаётся 3-комнатная квартира в строящемся доме (Дом 1.8а), срок сдачи: I-кв. 2027, общей площадью 55.97 кв.м., на 2 этаже. Новый жилой комплекс "НИКС Лайн на Ярославской" от группы компаний "НИКС" расположен по адресу: г. Челябинск, по ул. Ярославская.

О квартире

Тип жилья

Новостройка

Общая площадь

55,97 м²

Жилая площадь

23,5 м²

Высота потолков

2,6 м

Санузел

1 раздельный

Отделка

Чистовая

О доме

Количество лифтов

1 пассажирский

Тип дома

Панельный

Понравилась квартира — узнайте о ней больше

Застройщик ответит на все вопросы

Отделка квартиры

Чистовая: ремонт сделан, остаётся расставить мебель и заселиться

Варианты отделки в ЖК

  • Чистовая
  • Без отделки
Похоже на то, что вы ищете?

Акции в ЖК «НИКС Лайн на Ярославской»

Узнайте про персональные условия и дополнительные скидки при покупке квартиры у застройщика
Ипотечный калькулятор
  • Базовая
  • Семейная
  • ИТ-ипотека
  • 20%
  • 30%
  • 40%
  • 50%
лет
  • 10 лет
  • 20 лет
  • 30 лет
Загружаем предложения от застройщика и банков

Расположение

Корпус проверен наш.дом.рф
Обновлено 8 апреля 2026
  • Нет в реестре проблемных объектов
  • Застройщик не банкрот
  • Есть эскроу счёт
  • Актуальные фото стройки

Ещё квартиры в жилом комплексе

392 квартиры в продаже · Сдача в 2026—2027
ЗастройщикГК НИКС
Год основания: 1993
Строится: 14 домов в 6 ЖК
7 388 040 ₽
Цена за метр
132 000 ₽/м²
Условия сделки
долевое участие (214-ФЗ)