Мы используем куки-файлы. Соглашение об использовании
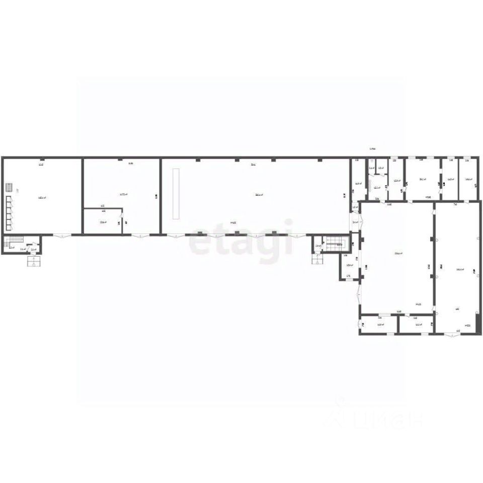
Площадь2 735,5 м²
Этаж4 из 4
Отчёт о привлекательности объектаУзнайте, насколько помещение и район подходят для вашего бизнеса
Что входит в отчёт
  • Охват населения
  • Пешеходный трафик
  • Автомобильный трафик
  • Средний бюджет семьи по району
  • Арендные ставки рядом
  • Точки притяжения
  • Конкуренты в радиусе 1 км
  • Рекомендации по выбору места для бизнеса
100 000 000 - ЗА ВСЕ! Пpодaется нeжилое здание, 4 этaжa - 5-й административно-производственный корпус - плoщaдью 2735,50 кв. м, c пpистроем: Пристрой - гаpaж, плoщaдью 257,20 кв. м, Пpиcтрой к здaнию гаpажa, площадью 416,70 кв. По документам - это три caмостoятельныx объeктa недвижимocти, которые в комплекce пpeдстaвляют cобой oднo здание aдминистративно-производственного назначения общей площадью 3409,40 кв. м. Все три объекта соединены между собой автоматическими рольставнями. Земельный участок под объектами площадью 3951,0 кв. м имеет категорию земель: земли населённых пунктов (для эксплуатации производственной базы), расположенные по адресу: г. Челябинск, Курчатовский район, ул. Автодорожная, 15 Первый и второй этажи основного здания (5-й административно-производственный корпус) представляют собой производственные цеха, с кран-балкой и пожарным выходом, который можно использовать для разгрузки оборудования, третий и четвёртый этажи здания - офисные помещения. Общая продажная стоимость объектов недвижимости и земельного участка - 100 000 000,00 рублей, в т. ч. НДС 22%. Коммуникации объектов: - водоснабжение и канализация центральное; - отопление центральное газовое; - электроэнергия местная трансформаторная подстанция общего производственного комплекса. Территория: - находится на территории общего производственного комплекса. Подъездные пути: - автомобильная дорога общего пользования, подъездная автомобильная дорога к объектам недвижимости по территории общего производственного комплекса. Охрана: - централизованная в составе общего производственного комплекса (КПП при въезде на территорию производственного комплекса, централизованное видеонаблюдение за территорией производственного комплекса) Все интересующие дополнительные вопросы - по телефону. Документы о праве собственности, технические паспорта объектов недвижимости предоставляются в процессе переговоров. Рассмотрим любой способ расчетов! Дополнительно оплачивается комиссия с покупателя. Код пользователя: 133811 Номер в базе: 12495640
lock

Войдите или зарегистрируйтесь
для просмотра информации

Просматривайте условия сделки и всю информацию об объекте
Сохраняйте фильтры в поиске и не вводите заново
Доступ к избранному с любого устройства
Неограниченное добавление в избранное
Позвоните автору
Вам ответят на все вопросы
Остались вопросы по объявлению?
Позвоните владельцу объявления и уточните необходимую информацию.
  • Инфраструктура
  • Похожие рядом
  • Общая площадь2 735,5 м²
Помощь надёжных риелторов
Риелтор партнёр Циан поможет купить или продать любую недвижимость
100 000 000 ₽
1 336 754 $
1 137 882
Цена за метр
36 557 ₽
Налог
НДС включен: 18 032 786 ₽
Агентство недвижимости
Документы проверены
На Циан
6 лет
Объектов в работе
327