Мы используем куки-файлы. Соглашение об использовании
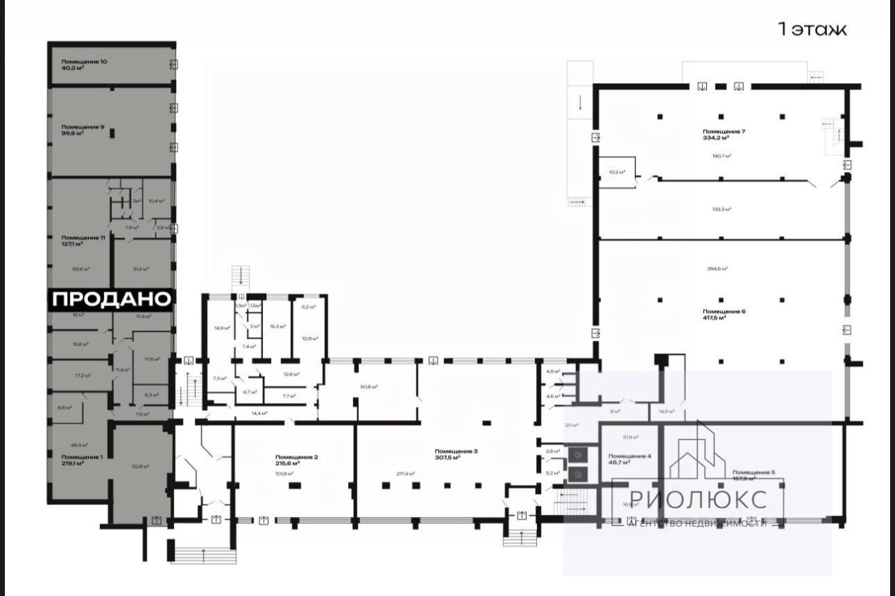
Помещение свободного назначения, 1 481,4 м²

Продается помещение свободного назначения, 1 481,4 м²

Площадь1 481,4 м²
Этаж1 из 5
Отчёт о привлекательности объектаУзнайте, насколько помещение и район подходят для вашего бизнеса
Что входит в отчёт
  • Охват населения
  • Пешеходный трафик
  • Автомобильный трафик
  • Средний бюджет семьи по району
  • Арендные ставки рядом
  • Точки притяжения
  • Конкуренты в радиусе 1 км
  • Рекомендации по выбору места для бизнеса
id:49284. Продается объект коммерческой недвижимости, помещение свободного назначения 1481,4 кв.м. в центре г. Челябинска, на первой линии, на пересечении ул.Худякова и Энтузиастов. Помещение находится рядом с ТК "Калибр". элитным жилым комплексом и лесопарковой зоной. Развитая инфраструктура. Транспортная доступность. Большой пешеходный и автомобильный сверх трафик. Собственная наземная парковка перед фасадом( (фасад может быть заменен на витринные окна). Удобный заезд. Помещение имеет высокий потенциал для размещения на первом этаже уникального торгового комплекса или Ритейл парк. Конструктив здания позволяет организовать, как открытие торговые пространства (open-space), также нарезку под бутики или фуд-холл. Объект расположен на главной артерии соединяющей центр, Северо-запад и элитные поселки, что предоставляет высокую проходимость.
lock

Войдите или зарегистрируйтесь
для просмотра информации

Просматривайте условия сделки и всю информацию об объекте
Сохраняйте фильтры в поиске и не вводите заново
Доступ к избранному с любого устройства
Неограниченное добавление в избранное
Позвоните автору
Вам ответят на все вопросы
Остались вопросы по объявлению?
Позвоните владельцу объявления и уточните необходимую информацию.
  • Инфраструктура
  • Похожие рядом
Помощь надёжных риелторов
Риелтор партнёр Циан поможет купить или продать любую недвижимость
148 140 000 ₽
2 089 387 $
1 790 809
Цена за метр
100 000 ₽
Налог
НДС включен: 26 713 770 ₽
Агентство недвижимости
Документы проверены
На Циан
6 лет
Объектов в работе
209