Мы используем куки-файлы. Соглашение об использовании

Продается здание, 203 м²

Площадь203 м²
Этажность3
Отчёт о привлекательности объектаУзнайте, насколько помещение и район подходят для вашего бизнеса
Что входит в отчёт
  • Охват населения
  • Пешеходный трафик
  • Автомобильный трафик
  • Средний бюджет семьи по району
  • Арендные ставки рядом
  • Точки притяжения
  • Конкуренты в радиусе 1 км
  • Рекомендации по выбору места для бизнеса
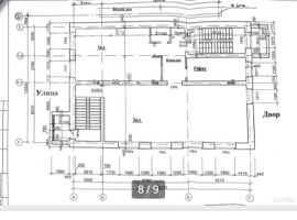
Арт. 132868908 Предлагается к продаже ликвидное коммерческое помещение. Его ликвидность обусловлена техническими характеристиками и местоположением. Находится в густонаселенном районе (2500 квартир в радиусе 250 метров). Фасад дома позволяет разместить большую наружную рекламу. Общая площадь - 203 кв.м. Второй этаж . Тепло, свет, вода, канализация, вентиляция. Два отдельных входа . 1 зал - 85 кв.м. , 2 зал - 45 кв. м. , 3 зал - 14 кв. м . Высота потолков 3,2 метра. Находится рядом с Универсамом Кировский. Подходит для производства, склада, а также в качестве спортивного зала (борьба, танцы, и т.д). Помещение в хорошем техническом и эстетическом состоянии. Всегда свободная парковка для клиентов. Один собственник, чистая продажа, быстрый выход на сделку. Возможна покупка в ипотеку. Федеральный Оператор Недвижимости "Самолет Плюс" окажет Вам бесплатное юридическое сопровождение сделки. Готовы оказать помощь в оформлении ипотеки на данный объект. Осуществляем показы по предварительной договоренности.
lock

Войдите или зарегистрируйтесь
для просмотра информации

Просматривайте условия сделки и всю информацию об объекте
Сохраняйте фильтры в поиске и не вводите заново
Доступ к избранному с любого устройства
Неограниченное добавление в избранное
Позвоните автору
Вам ответят на все вопросы
Остались вопросы по объявлению?
Позвоните владельцу объявления и уточните необходимую информацию.
  • Инфраструктура
  • Похожие рядом
Помощь надёжных риелторов
Риелтор партнёр Циан поможет купить или продать любую недвижимость
7 200 000 ₽
97 578 $
82 400
Цена за метр
35 468 ₽
Налог
УСН
Агентство недвижимости
Суперагент
На Циан
5 лет
Объектов в работе
238