Мы используем куки-файлы. Соглашение об использовании
Площадь450 м²
Этаж1 из 5
Отчёт о привлекательности объектаУзнайте, насколько помещение и район подходят для вашего бизнеса
Что входит в отчёт
  • Охват населения
  • Пешеходный трафик
  • Автомобильный трафик
  • Средний бюджет семьи по району
  • Арендные ставки рядом
  • Точки притяжения
  • Конкуренты в радиусе 1 км
  • Рекомендации по выбору места для бизнеса
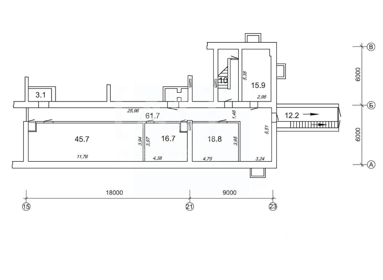
Продается коммерческая недвижимость с арендаторами (готовый арендный бизнес)! Адрес условный! Прекрасная возможность приобрести коммерческую недвижимость с действующими арендаторами, обеспечивающую стабильный доход. Общая площадь 440 кв.м, идеально подходит для бизнеса благодаря высокому трафику и удобному расположению. Напротив дома остановка общественного транспорта. Арендаторы: Пекарня, Инструменты, Общепит, Водомат. Соседи - Ярче, аптека Вита, Wildberries. Все центральные коммуникации, 65 кВт электроэнергии, высокие потолки 3,10 м, панорамные окна. Есть 3 входные группы + дебаркадер. Свободная планировка на колоннах. Не упустите возможность стать владельцем успешного арендного бизнеса!
lock

Войдите или зарегистрируйтесь
для просмотра информации

Просматривайте условия сделки и всю информацию об объекте
Сохраняйте фильтры в поиске и не вводите заново
Доступ к избранному с любого устройства
Неограниченное добавление в избранное
Позвоните автору
Вам ответят на все вопросы
Остались вопросы по объявлению?
Позвоните владельцу объявления и уточните необходимую информацию.
  • Инфраструктура
  • Похожие рядом
  • Тип зданияЖилой дом
  • Общая площадь450 м²
Помощь надёжных риелторов
Риелтор партнёр Циан поможет купить или продать любую недвижимость
Документы проверены
28 000 000 ₽
390 691 $
336 145
Цена за метр
62 223 ₽
Налог
УСН
Агентство недвижимости
Документы проверены
На Циан
8 лет
Объектов в работе
465