Мы используем куки-файлы. Соглашение об использовании
Площадь1 781 м²
Этаж1 из 1
Выс. потолков7.0 м.
ПомещениеСвободно
Отчёт о привлекательности объектаУзнайте, насколько помещение и район подходят для вашего бизнеса
Что входит в отчёт
  • Охват населения
  • Пешеходный трафик
  • Автомобильный трафик
  • Средний бюджет семьи по району
  • Арендные ставки рядом
  • Точки притяжения
  • Конкуренты в радиусе 1 км
  • Рекомендации по выбору места для бизнеса
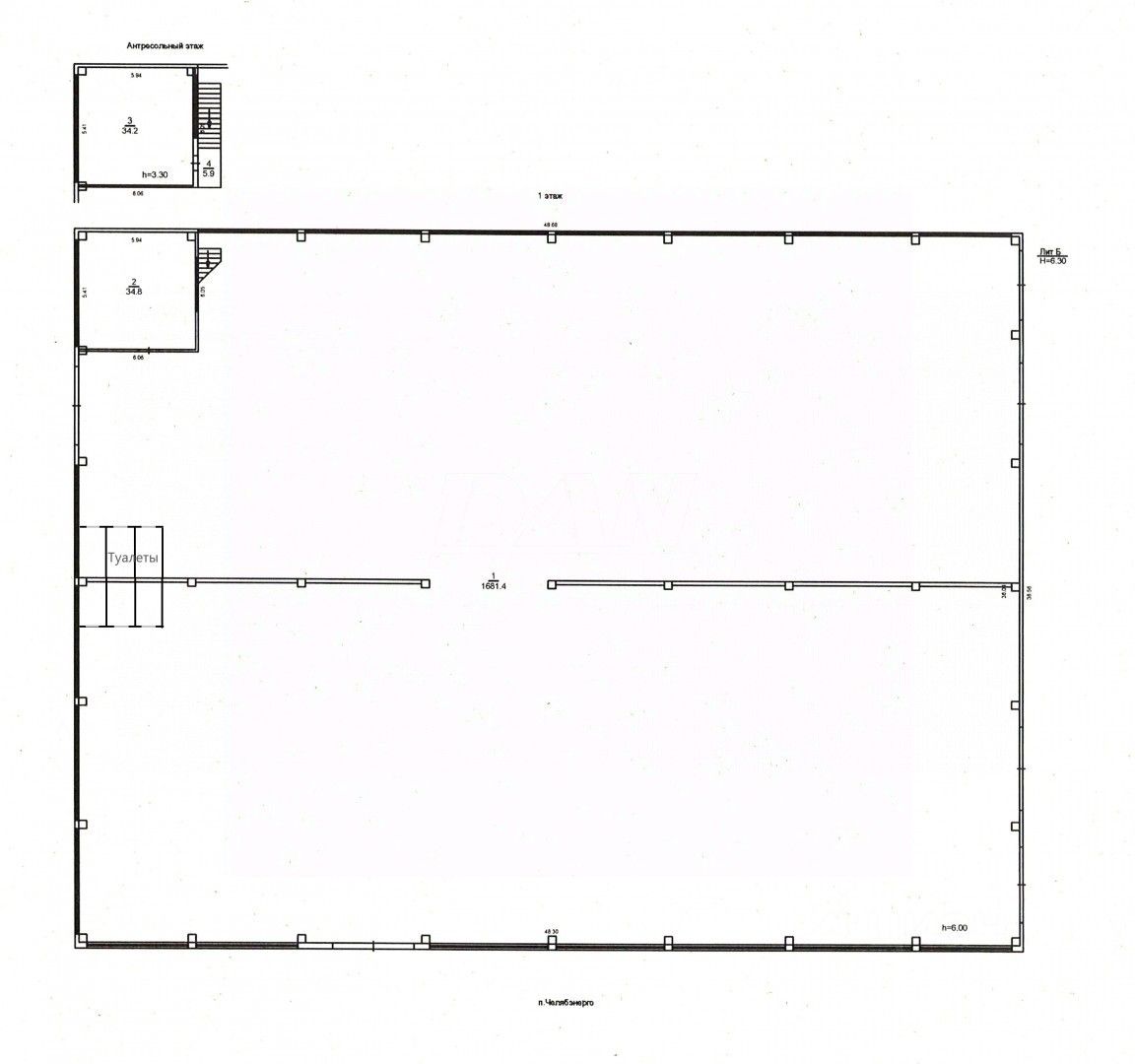
Предлагаем приобрести теплое производственно-складское здание общей площадью 1781 кв.м. со смотровыми ямами и подъемниками для обслуживания в том числе для крупнотоннажных автомобилей. Здание располагается рядом с густонаселенными районами города в близи остановки общественного транспорта. Технические характеристики базы и превосходная локации позволяют использовать объект для размещения: автосервис и станцию технического обслуживания автотранспорта, различные виды производства, склад готовой продукции, транспортно-логистический комплекс, распределительный центр, сборочный цех. Здание расположено на собственной охраняемой закрытой территория с круглосуточным доступом 24/7. Характеристики объекта: Производственно-складское здание S=1781 кв.м (пролет 36,0 м длина 48,0 м) Ворота подъемные секционные с электроприводом 4,2 *4,0 м - 6 шт. Высота потолка: в максимальной точке высота 6 м до ферм Помещения для персонала 50 м2 Помещение газовой котельной 30м2 Сан.узлы: 4 шт Офисные помещения площадью 35 м2 Коммуникации: Водоснабжение - локальное автономное (скважина). Горячая вода. Водоотведение - септик Отопление - газовая котельная с гибкой и экономичной системой тепловентиляторов Вулкан Электрическая мощность объекта 220 В + 380 В мощностью 250 кВт Территория: Огороженная/асфальтированная Круглосуточная вневедомственная охрана (полиция) Подъездные пути: асфальтированная дорога Парковка оборудованная для стоянки крупнотоннажного транспорта Объект расположен в пешей доступности от остановки общественного транспорта ост. Челябэнерго. Транспортная развязка в расположении объекта, обеспечивает всем выдам автомобильного транспорта доступ: + 5 мин. до Свердловский тракт (прямой въезд/выезд на федеральную трассу М5 в сторону г. Екатеринбург) + 5 мин. до Новгородский тракт (прямой въезд/выезд на федеральную трассу М5 в сторону г. Уфа) +5 мин до объездной дороги г. Челябинск +20 мин. до Центра Преимущества объекта: + Оборудован для обслуживания автотранспорта, в том числе крупнотоннажного + Круглосуточный доступ + Наличие помещений для персонала, сан.узлов + Экономичная и гибкая система отопления от собственной газовой котельной + Удобные подъездные пути + Объект подключен ко всем коммуникациям + Универсальное назначение помещений По всем интересующим вопросам - звоните. Арт. 126889461
lock

Войдите или зарегистрируйтесь
для просмотра информации

Просматривайте условия сделки и всю информацию об объекте
Сохраняйте фильтры в поиске и не вводите заново
Доступ к избранному с любого устройства
Неограниченное добавление в избранное
Позвоните автору
Вам ответят на все вопросы
Остались вопросы по объявлению?
Позвоните владельцу объявления и уточните необходимую информацию.
  • Инфраструктура
  • Похожие рядом
  • Общая площадь1 781 м²
Автономное отопление
Помощь надёжных риелторов
Риелтор партнёр Циан поможет купить или продать любую недвижимость
80 000 000 ₽
1 059 220 $
906 181
Цена за метр
44 919 ₽
Налог
УСН
Агентство недвижимости
Суперагент
На Циан
6 лет
Объектов в работе
256