Мы используем куки-файлы. Соглашение об использовании

Продается торговая площадь, 90 м²

Площадь90 м²
Этаж1 из 5
Отчёт о привлекательности объектаУзнайте, насколько помещение и район подходят для вашего бизнеса
Что входит в отчёт
  • Охват населения
  • Пешеходный трафик
  • Автомобильный трафик
  • Средний бюджет семьи по району
  • Арендные ставки рядом
  • Точки притяжения
  • Конкуренты в радиусе 1 км
  • Рекомендации по выбору места для бизнеса
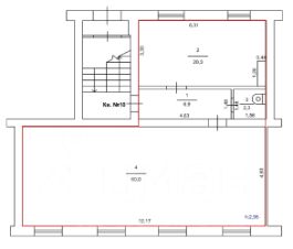
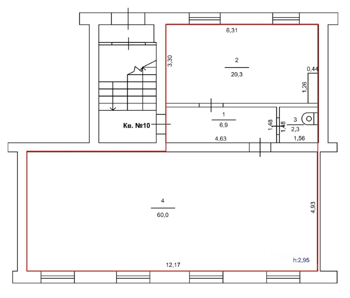
Предлагаем вашему вниманию готовую к переводу под нежилое, квартиру общей площадью 89.5м2 с высотой потолков 3.3м, удачно расположена в центре города на первой лини (4е окна на ул. Ленина, 2а во двор) на 1ом этаже жилого дома (практически весь 1ый этаж переведен в нежилой фонд). Выполнены подготовительные работы по ремонта: разводка эл-ва, на полу керамогранит, стены выровнены, потолок Армстронг, новые пластиковые окна. Идеально подойдет под любой вид торговой деятельности, отделения банка, медицинского центра, стоматологии, салон красоты, офис, ПВЗ, арендный бизнес. Хороший автомобильный и пешеходный трафик! Торг обсуждается индивидуально! За более подробной информацией и по просмотру звоните по указанному телефону.
lock

Войдите или зарегистрируйтесь
для просмотра информации

Просматривайте условия сделки и всю информацию об объекте
Сохраняйте фильтры в поиске и не вводите заново
Доступ к избранному с любого устройства
Неограниченное добавление в избранное
Позвоните автору
Вам ответят на все вопросы
Остались вопросы по объявлению?
Позвоните владельцу объявления и уточните необходимую информацию.
  • Инфраструктура
  • Похожие рядом
  • Общая площадь90 м²
Естественная вентиляция
Центральное отопление
Помощь надёжных риелторов
Риелтор партнёр Циан поможет купить или продать любую недвижимость
4 990 000 ₽
67 164 $
56 353
Цена за метр
55 445 ₽
Налог
УСН
Агентство недвижимости
Документы проверены