Мы используем куки-файлы. Соглашение об использовании
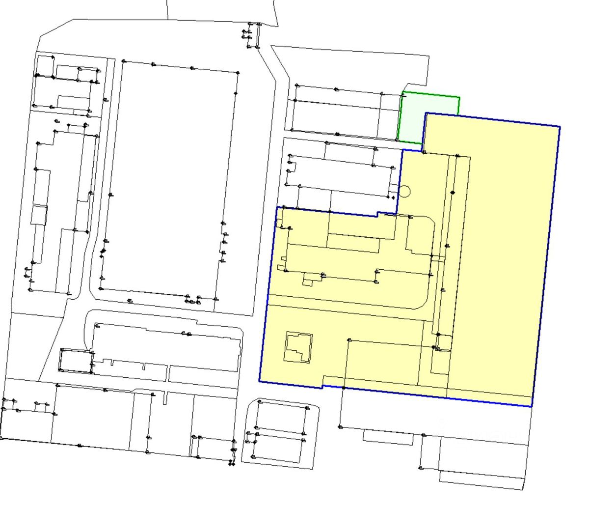
Площадь36 862,4 м²
Этаж1 из 1
Выс. потолков10.0 м.
Отчёт о привлекательности объектаУзнайте, насколько помещение и район подходят для вашего бизнеса
Что входит в отчёт
  • Охват населения
  • Пешеходный трафик
  • Автомобильный трафик
  • Средний бюджет семьи по району
  • Арендные ставки рядом
  • Точки притяжения
  • Конкуренты в радиусе 1 км
  • Рекомендации по выбору места для бизнеса
От собственника. Без комиссии. Перспективный объект. Продам производственные и производственно-складские помещения (Объект продажи). В состав Объекта продажи входит: Производственные, складские и офисные помещения общей площадью 13 356,9 кв.м. Земельные участки общей площадью 2,6 га Высота потолков цеха 10 м., пол бетонный, требуется ремонт. Цех площадью 2000 кв.м. действующий, подъемные механизмы грузоподъемностью 5 и 10 тонн, в аренде. Здание офисное в три этажа для размещения руководства, специалистов и ИТР, душевые, санузлы, гардеробные, слесарные, инструментальные участки и т.д., требуется ремонт. Все коммуникации действующие. На земельных участках расположены КТП и ТП общей мощностью 2000 кВа. (в стоимость объекта не включены). Объект продажи расположен в границах производственного комплекса. Присоединённая мощность 6 400 кВт Коммуникации: отопление, водоснабжение, водоотведение — центральная сеть. Преимущества: - возможность расширения с восточной стороны здания, в том числе, организация отдельных от производственного комплекса заездов на свою территорию. Возможность полной автономности. - совокупность зданий и сооружений, расположенных на земельном участке, площадь которого идеально подойдет под дополнительное строительство складских или производственных помещений, хранение, выдачу, транспортировку грузов. - есть возможность размещения логистического центра, грузoвого aвтотехцентpа. - хорошее местоположение, близость к ключевым автомобильным дорогам позволяет охватывать высокий автомобильный трафик. - объект полностью обеспечен всеми необходимыми коммуникациями:• электричество• водоснабжение• канализация• отопление• огороженная асфальтированная территория• видеонаблюдение по периметру, возможность газификации объекта.
lock

Войдите или зарегистрируйтесь
для просмотра информации

Просматривайте условия сделки и всю информацию об объекте
Сохраняйте фильтры в поиске и не вводите заново
Доступ к избранному с любого устройства
Неограниченное добавление в избранное
Позвоните автору
Вам ответят на все вопросы
Остались вопросы по объявлению?
Позвоните владельцу объявления и уточните необходимую информацию.
  • Инфраструктура
  • Похожие рядом
  • Тип зданияПроизводственно-складской комплекс
  • Площадь участка2,6 га
  • Общая площадь13 356,9 м²
  • Статус участкаВ собственности
Центральное отопление
Помощь надёжных риелторов
Риелтор партнёр Циан поможет купить или продать любую недвижимость
Автор объявленияЕвгения Гребенщикова
  • Документы проверены
  • 2 года 10 месяцев на Циане
  • 6 объявлений
  • 275 000 000 ₽
    3 672 514 $
    3 132 936
    Цена за метр
    7 461 ₽
    Налог
    УСН
    Автор объявленияЕвгения Гребенщикова
    Документы проверены