Мы используем куки-файлы. Соглашение об использовании
Аукцион
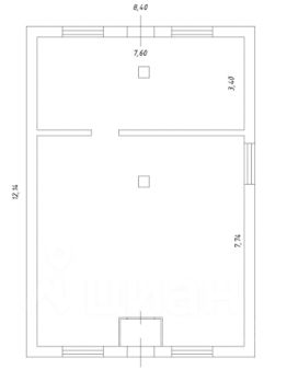
Площадь86,3 м²
Этажность1
Отчёт о привлекательности объектаУзнайте, насколько помещение и район подходят для вашего бизнеса
Что входит в отчёт
  • Охват населения
  • Пешеходный трафик
  • Автомобильный трафик
  • Средний бюджет семьи по району
  • Арендные ставки рядом
  • Точки притяжения
  • Конкуренты в радиусе 1 км
  • Рекомендации по выбору места для бизнеса
АО ЖТК предлагает к продаже нежилое здание, торговое, общей площадью 86,3 кв. м. в рп.Бердяуш, Саткинского района Челябинской области. Здание отдельно стоящее одноэтажное 1969 года постройки. Инженерные коммуникации: электроснабжение, отопление, водоснабжение, канализация. (отключены). Внутреннее состояние помещения удовлетворительное, требуется косметический ремонт и ремонт кровли. Объект расположен на земельном участке полосы отвода железной дороги с кадастровым номером: 74:18:00 00 000:9 площадью 104,9 кв. м., который будет передан по договору субаренды новому собственнику. Окружающая застройка: административные здания ОАО РЖД, ж/д станция, ж/д предприятия, магазины, ларьки, проходит основная магистраль автомобильной дороги поселка. Так как вблизи расположен ж/д вокзал отмечается высокий пешеходный трафик. Продажа объекта осуществляется путем проведения открытого аукциона на электронной торговой площадке РТС-тендер. Дата проведения аукциона: 04.05.2026 Дата окончания приема заявок: 27.04.2026 Номер процедуры на сайте РТС-тендер: 231002 Подробная информация на сайте АО Железнодорожная торговая компания в разделе Тендеры, РТС-тендер. Об организации осмотра и подробных условиях продажи Вы можете узнать по телефону в объявлении.
АукционОбъект реализуется посредством электронных торгов. Конечную информацию об оплате, дополнительных платежах и условия заключения договора смотрите в документах извещения к лоту, на сайте электронной торговой площадки.
lock

Войдите или зарегистрируйтесь
для просмотра информации

Просматривайте условия сделки и всю информацию об объекте
Сохраняйте фильтры в поиске и не вводите заново
Доступ к избранному с любого устройства
Неограниченное добавление в избранное
  • Инфраструктура
  • Похожие рядом
Помощь надёжных риелторов
Риелтор партнёр Циан поможет купить или продать любую недвижимость
Начальная цена, аукцион
1 379 771 ₽
18 446 $
15 566
Цена за метр
15 989 ₽
Налог
НДС включен: 248 811 ₽
Агентство недвижимости
Документы проверены