Мы используем куки-файлы. Соглашение об использовании

Продается торговая площадь, 344,9 м²

Площадь344,9 м²
Этаж1 из 2
ПомещениеСвободно
Отчёт о привлекательности объектаУзнайте, насколько помещение и район подходят для вашего бизнеса
Что входит в отчёт
  • Охват населения
  • Пешеходный трафик
  • Автомобильный трафик
  • Средний бюджет семьи по району
  • Арендные ставки рядом
  • Точки притяжения
  • Конкуренты в радиусе 1 км
  • Рекомендации по выбору места для бизнеса
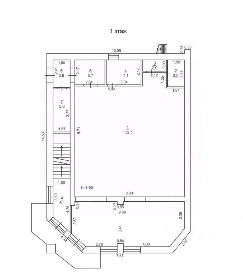
Продается отдельно стоящее 2-х этажное здание на первой линии с отдельным входом на ул. И.И. Неплюева. Объект является готовым успешным арендным бизнесом: Площади объекта сданы в аренду многолетним постоянным арендаторам. Уникальная локация с высокий трафиком потенциальных клиентов и покупателей, близость остановок общественного транспорта, круглосуточный доступ создали прекрасные условия для использования объекта в качестве: магазинов, различных видов объектов сферы услуг, а также в качестве офиса. Объект расположен на собственном земельном участке площадью 308 кв.м. Характеристика объекта: Общая площадь - 344,9 кв.м. 1 этаж площадью 160,1 кв.м 2 этаж площадью 184,8 кв.м Отдельная входные группы на улицу И.И. Неплюева. из каждого этажа и лестничных маршей на 2 этаж Отопление - централизованное Водоснабжение и водоотведение - центральное Электрическая мощность - 50 кВт, Охранно-пожарная сигнализация Ремонт: качественный евроремонт. Система вентиляции - вытяжная Сан. узелы на каждом этаже Объект расположен на первой линии ул. И.И. Неплюева в 20 м от остановки общественного транспорта ост. Проспект Неплюева (5 маршрутов) общественного транспорта во все районы города. Транспортная развязка в расположении объекта, обеспечивает доступ всем видам автомобильного + 1 мин. до ул. Гагарина (центральная улица города) + 5 мин до ЖД Вокзал г.Троицка + 5 мин. прямой въезд/выезд на федеральную трассу М 36 (прямой въезд/выезд в сторону Республики Казахстан, г.Челябинск, г.Уфа, г.Екатеринбург, г.Курган) + 3 мин. до Центра г. Троицк. Инфраструктура в районе 5-минутной пешеходной доступности: * Сетевые супермаркеты Магнит и Пятерочка * Аптека * Продуктовые магазины * Магазины одежды, обуви * Объекты бытовых услуг * Объекты медицинской тематики * Объекты сферы отдыха и развлечений * Научные и учебные заведения Преимущества объекта: + Площади объекта сданы в аренду и генерируют арендный поток + Качественный ремонт и отличное техническое состояние объекта + Близость объекта от объектов инфраструктуры + Большой пешеходный трафик улицы Неплюева + Близость остановок общественного транспорта + Земельный участок, на котором расположено здание в собственности + Установлены охранные, пожарные системы и система вытяжной вентиляции Звоните! Ответим на интересующие вопросы. Арт. 99942224
lock

Войдите или зарегистрируйтесь
для просмотра информации

Просматривайте условия сделки и всю информацию об объекте
Сохраняйте фильтры в поиске и не вводите заново
Доступ к избранному с любого устройства
Неограниченное добавление в избранное
Позвоните автору
Вам ответят на все вопросы
Остались вопросы по объявлению?
Позвоните владельцу объявления и уточните необходимую информацию.
  • Инфраструктура
  • Похожие рядом
  • Общая площадь344,9 м²
Помощь надёжных риелторов
Риелтор партнёр Циан поможет купить или продать любую недвижимость
23 750 000 ₽
313 105 $
266 090
Цена за метр
68 861 ₽
Налог
УСН
Агентство недвижимости
Документы проверены
На Циан
6 лет
Объектов в работе
295