316 484 ₽/м²
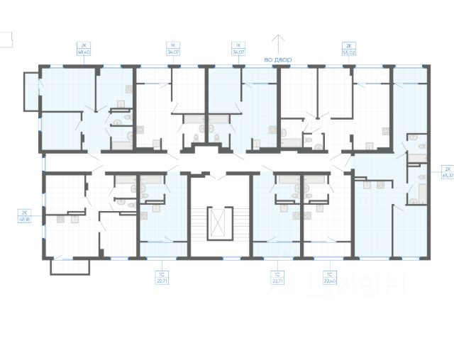
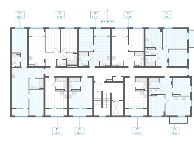
Продаются 3-комнатные апартаменты в строящемся доме (Гостиница Sunny Valley-15), срок сдачи: II-кв. 2027, общей площадью 58.84 кв.м., на 5 этаже. Sunny Valley - успешный проект с развитой инфраструктурой в красивейшем уголке Южного Урала на всесезонном курорте "Солнечная Долина". Курорт располагается в 10 км от Миасса у подножия горы Известной, прямо на горнолыжном курорте "Солнечная Долина". В 20 минутах езды от Sunny Valley находится клуб-отель "Золотой пляж", на берегу живописного озера Тургояк. Расстояние от Челябинска - порядка 130 км, от Екатеринбурга - 250 км. Закрытая облагороженная территория с развитой инфраструктурой дарит все блага цивилизации на фоне чистейшего воздуха, леса и гор. Здесь созданы все условия для отдыха от городской суеты, восстановления сил и душевного равновесия.











































































